Купить двухкомнатную квартиру, 60 м², 2 из 3 этажей

г Краснодар, ул Кореновская

фон объявления 109
фон объявления 109
фон объявления 109
фон объявления 109
фон объявления 109
фон объявления 109
фон объявления 109
фон объявления 109

Общая площадь

60 м²

Этаж

2

Ремонт

Требуется
4 000 000 ₽

66 667 ₽ / м²

Елена

Агент

Елена

О здании

Тип дома

Кирпичный

Год постройки

2022

Об объекте

Общая площадь

60

Смежная/Изолированная

Изолированная

Ремонт

Требуется

Описание

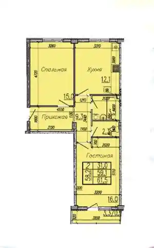
Продается 2х комнатная квартира в новом доме в Прикубанском округе г. Краснодар, микрорайон им. Маршала Жукова. Очень комфортный район с развитой инфраструктурой. Малоэтажное строительство. Облагороженная придомовая территория, выложена тротуарной плиткой, во дворе детская, спортивная площадка, клумбы с газоном и цветами. Недалеко магазины, школы, садики, торговые центры. Отделка квартиры предчистовая, под ремонт. Есть еще вариант с готовым ремонтом. Квартира удачной планировки, светлая, просторная. Есть выписка ЕГРН. Возможна продажа в ипотеку.

Расположение

г Краснодар, ул Кореновская

Бесплатная консультация и подбор новостроек

телефон +7 988 622-42-45
Подобрать новостройкуПодобрать